Key Features

  • Detached property, being sold with no chain
  • Upgrading required but excellent potential
  • Four bedrooms
  • Two bathrooms
  • Two reception rooms
  • Off road parking and garage
  • A mature, private rear garden
  • In catchment for Sully Primary School and Stanwell School

A four bedroom detached property located in a quiet cul-de-sac in Sully, in need of modernisation but with superb potential as a modern family home. In catchment for Sully Primary School and Stanwell School, the property is situated on a well-proportioned plot with good off road parking and a lovely, private rear garden. The ground floor comprises the entrance hall, two reception rooms, kitchen and WC while the four bedrooms and two bathrooms are above. Despite the fact the property would benefit from being upgraded, it is well-presented and has been looked after as a much loved family home for many years. No onward chain. EPC: D.

Details

Accommodation

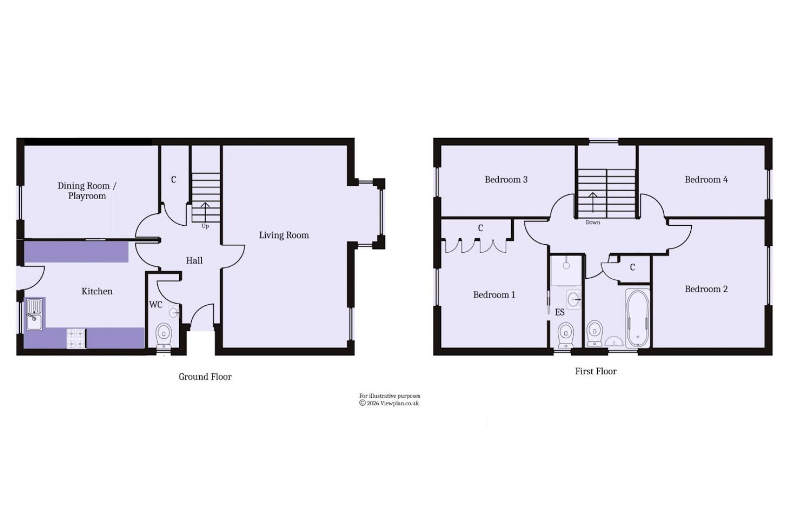
Ground Floor

Entrance Hall

uPVC double glazed panel front door and side window - both with stained glass. Fitted carpet. Central heating radiator. Doors to the living room, kitchen, dining room and WC. Power point and phone point. Coved ceiling. Under stair cupboard.

Living Room (11' 11'' plus bay x 19' 5'' (3.64m plus bay x 5.91m))

A large living room with two windows to the front - one being a box bay window. Fitted carpet. Coved ceiling. Two central heating radiators. Power points, phone and TV point. Fireplace with wood surround, hearth and a gas fire.

Dining Room / Playroom (12' 10'' x 8' 11'' (3.92m x 2.72m))

A second reception room, next to the kitchen and with a uPVC double glazed window to the rear that overlooks the garden. Fitted carpet. Coved ceiling. Power points. Central heating radiator. Serving hatch to the kitchen.

Kitchen (10' 8'' x 10' 4'' (3.26m x 3.14m))

Fitted kitchen comprising wall units and base units with laminate work surfaces and tiled splashbacks. Integrated appliances including an electric oven, four burner gas hob, extractor hood, counter level fridge and freezer along with a washing machine. One and a half bowl composite sink with drainer. uPVC double glazed window and door into the garden. Wall mounted gas boiler. Central heating radiator. Power points. Hatch to the dining room.

WC

Vinyl flooring. WC and sink with storage below. Central heating radiator. High level uPVC double glazed window to side. Cabinet with mirrored door.

First Floor

Landing

Fitted carpet to the stairs and landing. Large uPVC double glazed window. Power point. Hatch to the loft space. Doors to all four bedrooms and the bathroom.

Bedroom 1 (10' 3'' x 12' 4'' (3.12m x 3.76m))

Double bedroom with uPVC double glazed window overlooking the garden, and an en-suite shower room. Fitted carpet. Central heating radiator. Power points. Fitted wardrobes. Coved ceiling. Sliding door to the en-suite.

En-Suite (3' 3'' x 9' 0'' (1m x 2.74m))

Suite comprising a shower cubicle with electric shower, pedestal sink and WC. Fitted carpet. Part tiled walls. Central heating radiator. High level uPVC double glazed window. Cabinet with mirrored doors.

Bedroom 2 (10' 11'' x 12' 3'' (3.32m x 3.74m))

Double bedroom with uPVC double glazed window to the front. Fitted carpet. Recessed for wardrobes. Central heating radiator. Power points. Coved ceiling.

Bedroom 3 (13' 1'' x 6' 11'' (3.99m x 2.12m))

A smaller double bedroom, and another with a uPVC double glazed window overlooking the garden. Fitted carpet. Coved ceiling. Power points. Central heating radiator.

Bedroom 4 (12' 2'' x 7' 0'' (3.7m x 2.13m))

A fourth double bedroom. Fitted carpet. uPVC double glazed window to the front. Power points. Central heating radiator. Coved ceiling.

Bathroom (6' 4'' x 9' 0'' (1.94m x 2.74m))

Vinyl flooring. Built-in cupboard with hot water cylinder. Suite comprising a panelled bath with electric shower, WC and pedestal sink. Part tiled walls. Central heating radiator. Cabinet with mirrored doors. uPVC double glazed window to the side.

Outside

Front and Side

A front garden laid to stone chippings and with a driveway to the side that narrows and leads to the garage.. Mature planting. There is a covered external porch with outside gas and electricity meter boxes as well as an electric light. Open access to the garden.

Garage

Up and over garage door.

Rear Garden

A relatively private rear garden with a westerly aspect. Paved patio and lawn. Mature planting and trees throughout. Timber shed. Outside tap.

Additional Information

Tenure

The property is freehold (WA161044).

Council Tax Band

The Council Tax band for this property is F, which equates to a charge of £3180.82 for the year 2026/27.

Approximate Gross Internal Area

1196 sq ft / 111.1 sq m.

Utilities

The property is connected to mains gas, electricity, water and sewerage services and has gas central heating.

Floorplan

Floorplan for Grimson Close, Sully

Location