Key Features

  • Ground floor flat
  • One bedroom with en-suite bathroom
  • Large living / dining room and a separate kitchen
  • Additional WC
  • Private garden
  • Allocated parking space
  • No onward chain
  • Ideal for first time buyers, downsizers and investors

Bidding opens Monday 16th March 2026 at midday and closes Wednesday 18th March 2026 at midday. Please contact Auction House Wales for further information and to arrange a viewing. First Floor, 6 Station Road, Radyr, Cardiff, CF15 8AA. A ground floor, one bedroom flat with spacious living room, a private garden and allocated parking space, being sold with no onward chain. In need of upgrading throughout but with good potential and an excellent location in the heart of Penarth Marina. EPC: C.

Details

Accommodation

Entrance Hall

Laminate flooring. Doors to the living room and WC. Dado rail. Electrical consumer unit. Door entry phone.

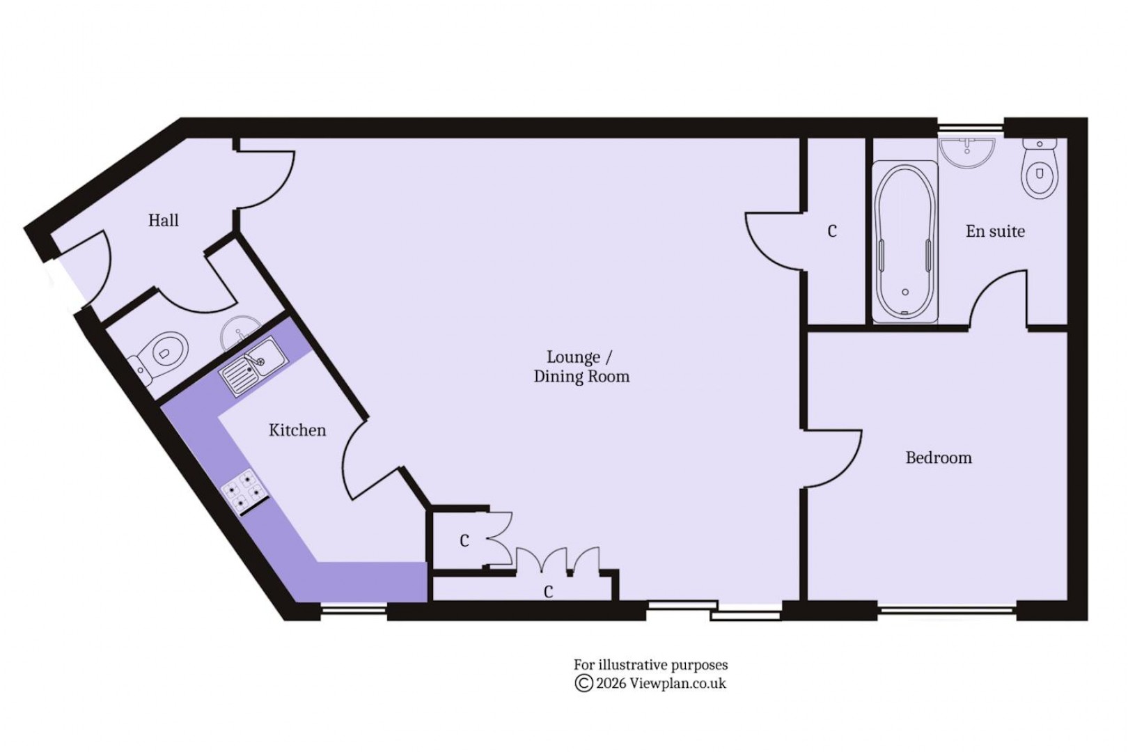
Living / Dining Room (22' 2'' max x 17' 7'' max (6.76m max x 5.37m max))

A spacious living / dining room with access to the kitchen and bedroom as well as out into the garden. Laminate flooring throughout. Recessed lighting. Coved ceiling and dado rail. Fitted storage. Phone, TV and power points. Wall mounted electric heater. Decorative fireplace. Double glazed sliding doors into the garden.

Kitchen (11' 5'' max into corner x 6' 4'' (3.47m max into corner x 1.93m))

A fitted kitchen comprising of wall units and base units with laminate work surfaces. Integrated electric oven, four zone electric hob and extractor hood. Plumbing for a fridge freezer and space for a counter level fridge. Single bow stainless steel sink with drainer. Power points and a wall mounted electric heater.

Bedroom (9' 8'' x 10' 8'' (2.95m x 3.26m))

This is a well-proportioned double bedroom with en-suite bathroom and a double glazed window into the garden. Fitted carpet. Power points. Wall mounted electric heater. Door to en-suite.

Bathroom (7' 1'' x 5' 10'' (2.15m x 1.77m))

Suite comprising a panelled bath with electric shower, a pedestal sink and a WC. Double glazed window. Shaver point. Wall mounted electric heater. Vinyl flooring.

WC (3' 7'' x 6' 5'' (1.08m x 1.95m))

WC and pedestal sink. Laminate floor. Extractor fan.

Outside

Parking

Allocated car parking space in a nearby car park

Garden

The property has its own paved garden, accessed from the main living / dining room.

Additional Information

Tenure

The property is leasehold (WA800341), with 968 years remaining (999 years from 1 January 1995).

Service Charge and Grount Rent

We have been informed by the seller that the current service charge is £1452 per year, with a ground rent of £10.00 per year.

Council Tax Band

The Council Tax band for this property is D, which equates to a charge of £2124.01 for 2025/26.

Approximate Gross Internal Area

550 sq ft / 51.1 sq m.

Utilities

The property is connected to mains electricity, water and sewerage services and has electric heating.

Floorplan

Floorplan for Plas St Pol de Leon, Penarth

Location