Key Features

  • Top floor flat with stunning views
  • One bedroom
  • Open plan living space and kitchen
  • Large balcony
  • Allocated undercroft parking space
  • No onward chain
  • On a modern development with concierge, gym and swimming pool

A one bedroom top floor flat with very impressive water views across Cardiff Bay, being sold with no onward chain and ideal for first time buyers and investors. The living accommodation comprises the entrance hall, open plan living room / kitchen, the bedroom and bathroom. The property has an allocated, undercroft parking space and a balcony that spans the full width of the flat, with space for chairs to make the most of the view. The development has use of a communal gym, swimming pool and has a 24-hour concierge. Viewing advised. EPC: D.

Details

Accommodation

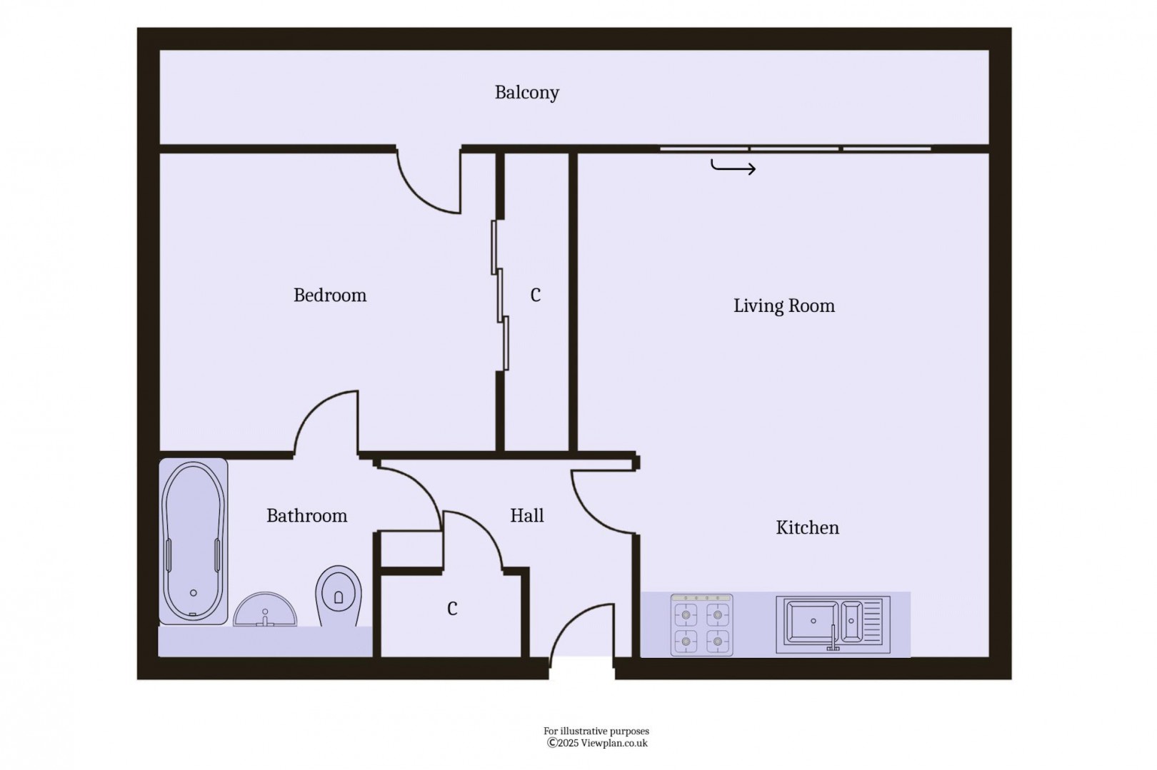
Hall

Fitted carpet. Power points. Wall mounted electric heater. Door entry phone. Large built-in cupboard with hot water cylinder and electrical consumer unit. Doors to the living room / kitchen, bedroom and bathroom.

Living Room (13' 9'' x 10' 0'' (4.18m x 3.05m))

Part of an open plan living space with kitchen, that has water views over Cardiff Bay. Fitted carpet. Aluminium double glazed sliding doors onto the balcony. Two wall mounted electric heaters. Power, phone and TV points.

Kitchen (11' 3'' x 7' 1'' (3.44m x 2.17m))

Vinyl flooring. Fitted kitchen comprising wall units and base units with laminate work surfaces. Integrated appliances including an electric oven, four zone electric hob, extractor hood and washing machine. Freestanding fridge freezer. One and a half bowl stainless steel sink. Part tiled walls. Power points. Recessed lighting.

Bedroom (11' 4'' plus wardrobes x 10' 0'' (3.45m plus wardrobes x 3.06m))

Double bedroom with fitted carpet, built-in wardrobes and an aluminium double glazed door onto the balcony and with views over Cardiff Bay. Wall mounted electric heater. Power, TV and phone points.

Bathroom (7' 3'' x 6' 9'' (2.2m x 2.06m))

Tiled floor and part tiled walls. Suite comprising a panelled bath with mixer shower and glass screen, WC and sink. Heated towel rail. Fitted mirror. Shaver point. Recessed lighting.

Outside

Balcony (28' 8'' x 3' 5'' (8.73m x 1.03m))

A balcony that spans the width of the property, with amazing water views over Cardiff Bay. Laid to paving. Glass and steel balustrade.

Parking

The property has one allocated, undercroft parking space.

Communal Facilities

The property benefits from the use of extensive communal facilities including gardens, gym and swimming pool with sauna.

Additional Information

Tenure

The property is leasehold (CYM493330) with 125 years to run from 1st January 2006 (105 years remaining).

Council Tax

The property is Council Tax band D, which equates to a charge of £1,922.19 for 2025/26.

Service Charge and Ground Rent

We have been informed by the seller that the current service charge for 2025 is £2874.47 which includes ground rent at £226.60 and buildings insurance at £528.51

Approximate Gross Internal Area

549 sq ft / 51.0 sq m.

Utilities

The property is connected to mains electricity, water and sewerage services.

Floorplan

Floorplan for Dovercourt House, Ferry Court, Cardiff

Location