Key Features
- Victorian / Edwardian, bay fronted terraced house
- Four bedrooms
- One bathroom
- Two reception rooms
- Enclosed rear garden
- Lots of original period features
- Large kitchen / diner to the rear
- Garage with lane access
- No onward chain
An attractive period property, full of original features and with spacious, versatile living space. This wonderful family home has been very well looked after over the years and now has excellent potential to modernise and upgrade. The living accommodation comprises the porch and entrance hall, two reception rooms on the ground floor along with four bedrooms, a bathroom and a WC on the first floor. There is front garden that sets the house well back from the pavement and road, an enclosed rear garden and a garage with lane access. Sold with no onward chain. EPC: TBC.
Details
Accommodation
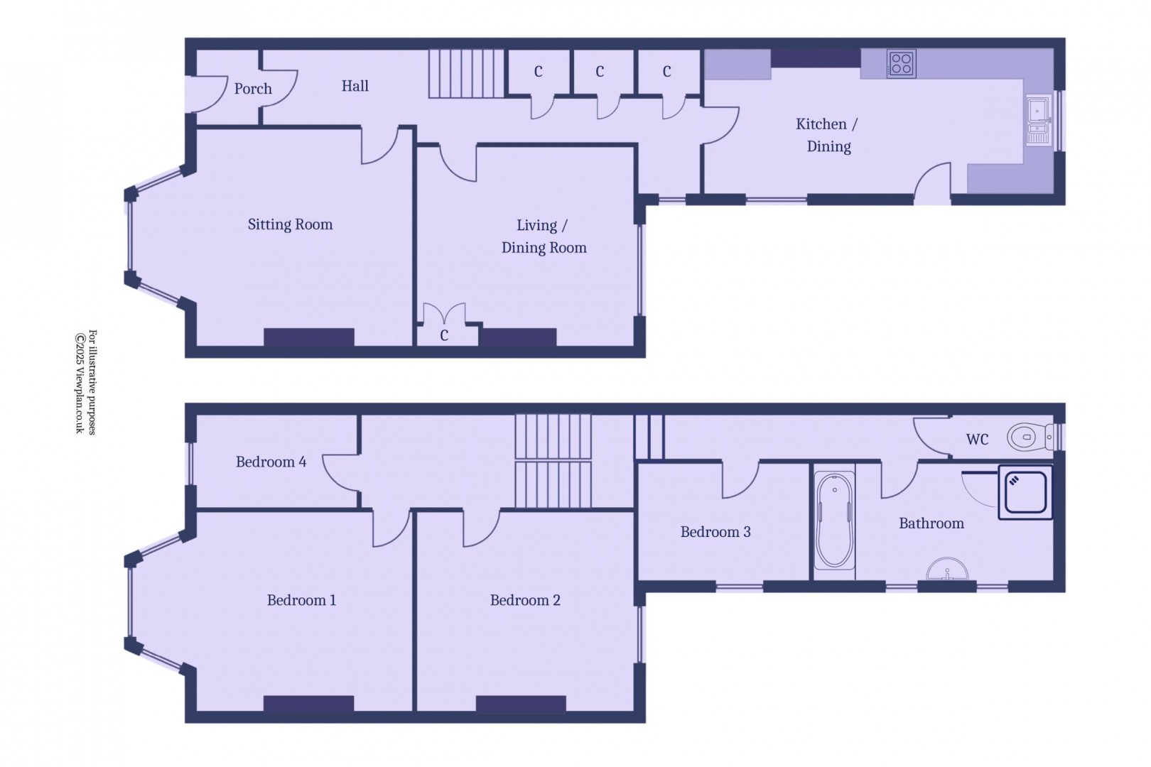
Ground Floor
Porch (4' 9'' x 4' 1'' (1.45m x 1.25m))
Tiled floor and part tiled walls to dado rail level. Wood front door and original inner door - both with glazed panels and with original windows above the inner door. Original cornice. Gas meter.
Entrance Hall
Fitted carpet. Original features including deep skirting boards, cornice, doors to both reception rooms and the kitchen as well as the staircase to the first floor. Central heating radiator. Three under stair cupboards. Opening near the kitchen with a window to the side, power points and phone point.
Sitting Room (13' 5'' into recess x 17' 1'' into bay (4.09m into recess x 5.2m into bay))
The main reception room to the front of the house, with an attractive wooden double glazed bay window onto Windsor Road. Original picture rails, cornice and deep skirting boards. Period style cast iron fireplace with gas fire, wooden surround and granite hearth. Power points and TV point. Central heating radiator.
Living / Dining Room (12' 4'' x 13' 4'' (3.77m x 4.07m))
The second reception room, this time with a large wooden double glazed window to the rear onto the side return. Original picture rails, cornice, deep skirting boards, recessed cupboard and a fireplace with cast iron grate, slate surround and a tiled hearth. Fitted carpet. Central heating radiator. Power points and TV point.
Kitchen / Diner (10' 7'' x 21' 6'' (3.22m x 6.55m))
A large, opened up kitchen with dining space. Tuled floor throughout. Period style fireplace with gas fire and wooden surround. uPVC double glazed window and door to the side and windows to the rear overlooking the garden. Fitted kitchen comprising wall units and base units with wooden cabinet doors and laminate work surfaces. Integrated appliances including an electric oven and grill, four burner gas hob, extractor hood and a counter level fridge and freezer. Plumbing for washing machine. One and a half bowl stainless steel sink with drainer. Part tiled walls. Recessed lights. Coved ceiling. Central heating radiator. Power points. Plenty of space for a large dining table and chairs.
First Floor
Landing
Fitted carpet to the stairs and landing. Original deep skirting boards, staircase to the upper front level, ceiling arch and doors to all four bedrooms, the bathroom and the WC. Power points.
Bedroom 1 (12' 5'' into recess x 17' 2'' into bay (3.79m into recess x 5.23m into bay))
A double bedroom with wooden double glazed bay window to the front of the house. Fitted carpet. Original cornice, picture rails, deep skirting boards and fireplace with cast iron grate with tiles and a marble surround. Central heating radiator. Power points.
Bedroom 2 (12' 4'' x 13' 0'' (3.76m x 3.96m))
Double bedroom with wooden double glazed window to the rear. Fitted carpet. Original cornice, picture rails, skirting boards and a fireplace with cast iron grate and wooden surround. Central heating radiator. Power points.
Bedroom 3 (7' 5'' x 9' 7'' (2.26m x 2.91m))
Single bedroom, ideal as a home office. Wooden double glazed window to the side. Fitted carpet. Central heating radiator. Power points. Original picture rails. Wall mounted gas combination boiler.
Bedroom 4 (6' 0'' x 9' 11'' (1.83m x 3.01m))
Single bedroom to the front of the house, which has potential for use a walk-in wardrobe or en-suite bathroom to the main bedroom. Fitted carpet. Wooden double glazed window to the front. Central heating radiator. Power points. Original picture rails and skirting boards.
Bathroom (7' 4'' x 10' 10'' (2.24m x 3.3m))
A spacious bathroom with suite comprising a freestanding cast iron slipper bath with hand shower fitting, shower cubicle with electric shower and a pedestal sink. Two wooden double glazed windows to the side. Part carpet and part tiled floor along with fully tiled walls. Coved ceiling. Central heating radiator
WC (2' 11'' x 6' 5'' (0.89m x 1.96m))
Fitted carpet. Part tiled walls to dado rail level. WC. Wooden double glazed window to the rear. Coved ceiling.
Outside
Front
A landscaped front garden laid to paving and stone chippings. Mature planting beds. Original brick and stone walls to either side. Pathway with steps and original clay tiles to the front door. Wrought iron gate and railings.
Rear Garden
An enclosed rear garden with sizeable side return and rear garage that has lane access. Mostly laid to block paving and stone slabs. Original stone walls to both sides. Mature planting throughout. Outside tap.
Garage (17' 3'' x 17' 8'' (5.25m x 5.38m))
Electric roller shutter door to the lane and a door and uPVC double glazed window to the rear into the garden. Loft style storage. Electric light and power points.
Additional Information
Tenure
The property is freehold (WA955418).
Council Tax Band
The Council Tax band for this property is F, which equates to a charge of £3068.02 for 2025/26.
Approximate Gross Internal Area
1523 sq ft / 141.5 sq m.
Utilities
The property is connected to mains gas, electricity, water and sewerage services and has gas central heating.
Floorplan
