Key Features

  • A fully furnished second floor flat
  • One double bedroom and one mezzanine room above
  • Two bathrooms
  • Living / dining room and separate kitchen
  • Available immediately pending a successful application
  • Town centre location

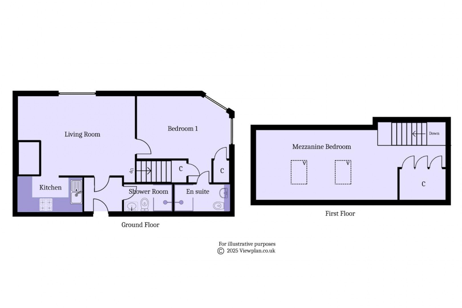
A spacious, fully furnished one bedroom, second floor flat with additional mezzanine space, in a town centre location, ideal for access to all that Penarth has to offer as well as the train station, Esplanade and Alexandra Park. The property comprises a hall, living / dining room, kitchen, double bedroom with en-suite bathroom, an additional shower room and the mezzanine level. Available immediately. EPC: E.

Details

Accommodation

Hall (4' 8'' x 5' 2'' (1.42m x 1.58m))

Doors to the living room and bathroom.

Living Room (16' 8'' x 11' 5'' (5.07m x 3.48m))

An impressive, spacious living room that is open to the kitchen and has strikingly high ceilings up to the mezzanine level. Stairs to the mezzanine and a door into the main bedroom. Central heating radiator. Power points and TV point.

Kitchen (9' 3'' x 5' 0'' (2.83m x 1.52m))

Fitted kitchen comprising wall units and base units with matt black doors and wood effect laminate work surfaces. Integrated appliances including an electric oven, four zone induction hob, fridge freezer and washer / dryer. Single bowl composite sink with drainer. Power points. Freestanding appliances including a kettle, coffee machine, toaster and air fryer.

Bedroom (12' 0'' x 9' 0'' plus additional space (3.65m x 2.74m plus additional space))

A double bedroom with fitted storage and an en-suite shower room. uPVC double glazed bay window to the side. Central heating radiator.

En-Suite (7' 4'' x 4' 6'' (2.24m x 1.38m))

Suite comprising a shower cubicle, WC and sink. uPVC double glazed window. Heated towel rail.

Shower Room (6' 7'' x 4' 7'' (2m x 1.39m))

A shower room comprising a shower cubicle with twin head mixer shower, a WC and a sink. Heated towel rail.

Mezzanine Bedroom (26' 7'' x 9' 10'' with restricted head height (8.09m x 2.99m with restricted head height))

A sizeable mezzanine space, ideal as an additional bedroom, with plenty of fitted storage, or as a home office or study space. Fitted carpet. Two Velux windows. Power points. Glass balustrade overlooking the living space.

Additional Information

Availability

The property is available immediately, on an furnished basis, pending the successful completion of the application process. The items of furniture to remain at the property include a king size bed with mattress, a double bed with mattress, four bedside tables, wardrobes in the main bedroom, a corner sofa, foot stool, dining table and four chairs.

Council Tax Band

The Council Tax band for this property is C, which equates to a charge of £1888.01 for 2025/26.

Our Fees

For all tenancies, we require rent paid one month in advance. Prior to the commencement of any tenancy, tenants must pay, in cleared funds, the first months rent unless otherwise agreed. A further payment of one months rent plus £100 is also due as a security deposit, this payment will be held in the Government backed TDS scheme. Initial move-in monies can be paid online via BACS, with a debit or credit card via The Letting Partnership (on the phone), or in cash to David Baker & Company. Details of the Tenancy Deposit Scheme can be found on their site, www.tenancydepositscheme.com. A holding deposit equal to one weeks rent is payable to secure the property. David Baker & Company is a member of The Property Ombudsman. David Baker & Company is a member of a Client Money Protection scheme operated by Client Money Protect (CMP).

Affordability

In order to successfully complete the application process, an applicant must be able to prove a total annual income of £39,600.

Utilities

The property is connected to mains gas, electricity, water and sewerage services and has gas central heating.

Floorplan

Floorplan for Stanwell Road, Penarth

Location