Key Features

  • One bedroom second floor flat
  • Shared communal garden
  • Living space with partly separate kitchen
  • Excellent location close to the town centre
  • Available immediately
  • Unfurnished

A one bedroom second floor flat in an excellent location for access to both Penarth town centre and The Esplanade. Comprises the entrance hall, living room, kitchen, bedroom and shower room. There is a shared garden, as well as off road parking available to the front and additional shared storage. Available immediately pending a successful application. Unfurnished. EPC E.

Details

Accommodation

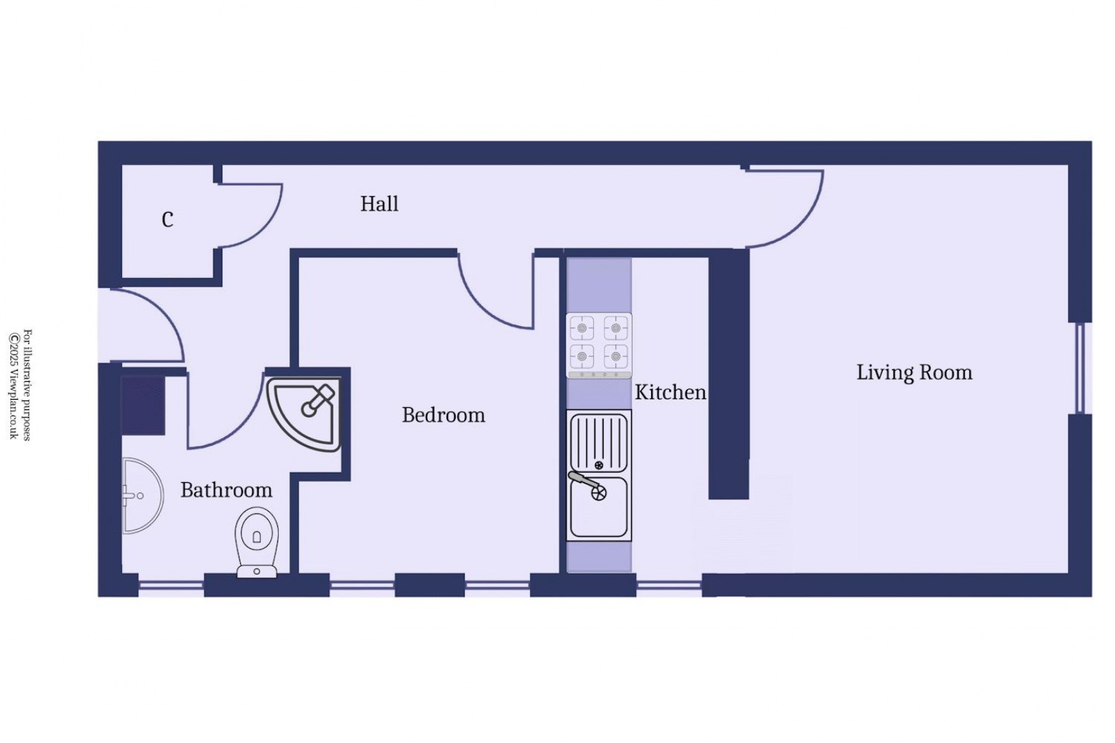
Hall

Fitted carpet. Built-in cupboard with gas boiler. Central heating radiator. Power points. Doors to the living room, bedroom and shower room.

Living Room (13' 0'' x 10' 2'' (3.96m x 3.1m))

Fitted carpet. uPVC double glazed window to the rear. Central heating radiator. Door entry phone. Power points, Virgin media point and phone point. Open to the kitchen.

Kitchen (10' 1'' x 4' 8'' (3.08m x 1.42m))

Vinyl floor. Fitted kitchen comprising wall units and base units with laminate work surfaces. Integrated electric oven, four zone electric hob and extractor hood. Freestanding counter level fridge freezer and a washing machine. uPVC double glazed window to the side. Central heating radiator. Power points. Single bowl stainless steel sink with drainer.

Bedroom (10' 1'' x 8' 5'' max (3.08m x 2.56m max))

Fitted carpet. Two uPVC double glazed windows to the side. Central heating radiator. Power points.

Shower Room (6' 5'' max x 7' 3'' max (1.96m max x 2.2m max))

Vinyl flooring. Shower cubicle with mixer shower, WC and a pedestal sink. Central heating radiator. uPVC double glazed window to the side. Recessed lighting. Fitted mirror. Extractor fan.

Outside

Communal Garden

The property has use of a sizeable communal garden to the rear, laid to lawn.

Additional Information

Availability and Furnishing Status

The property is available immediately, subject to a successful completion of the application process. It is unfurnished, but does have kitchen appliances including an oven, hob, extractor hood, counter level fridge with freezer compartment, and a washing machine.

Council Tax Band

The Council Tax band for this property is C, which equates to a charge of £1888.01 for 2025/26.

Approximate Gross Internal Area

376 sq ft / 34.9 sq m.

Our Fees

For all tenancies, we require rent paid one month in advance. Prior to the commencement of any tenancy, tenants must pay, in cleared funds, the first months rent unless otherwise agreed. A further payment of one months rent plus £100 is also due as a security deposit, this payment will be held in the Government backed TDS scheme. Initial move-in monies can be paid online via BACS, with a debit or credit card via The Letting Partnership (on the phone), or in cash to David Baker & Company. Details of the Tenancy Deposit Scheme can be found on their site, www.tenancydepositscheme.com. A holding deposit equal to one weeks rent is payable to secure the property. David Baker & Company is a member of The Property Ombudsman. David Baker & Company is a member of a Client Money Protection scheme operated by Client Money Protect (CMP).

Affordability

In order to successfully complete the application process, applicants must be able to prove combined earnings of £TBC.

Floorplan

Floorplan for Plymouth Road, Penarth

Location